奥克兰首批“廉价房”落户Mt Albert Unitec把校园卖了……
作者: YU 日期:2018-03-26 08:30:08 阅读: 来源:天维网编译
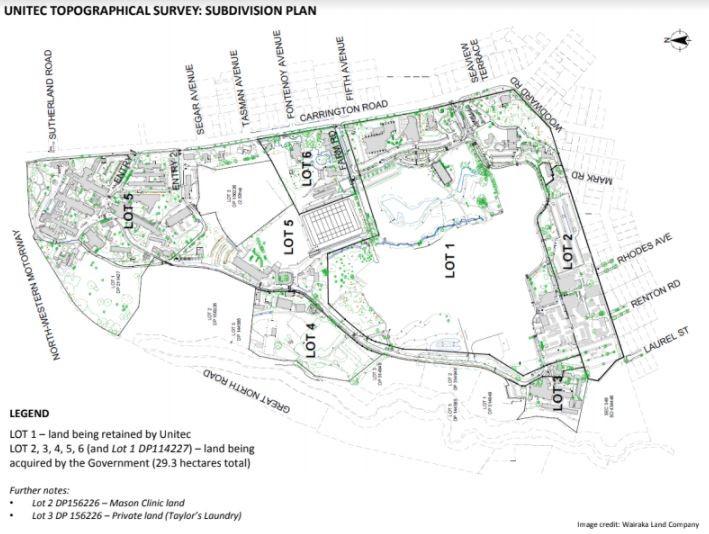
【天维网 综合Stuff消息 YU编译】日前,住房和城市发展部长Phil Twyford宣布,政府在Unitec的Mt Albert校区确定了第一个KiwiBuild项目。
据悉,政府在Unitec的Mt Albert购买了29公顷的土地,将在那里建起大约3000-4000个房屋,建成后距离city大约9公里。
Phil Twyfor今早(周日)表示,有太多的奥克兰人因住房危机而受苦,“孩子们住在汽车里,家人们挤在小屋子里,政府不会坐视不管,一定要行动起来解决这个问题”。
他还强调:他这个项目的3-4000套房子将会有:给首次购房者的房子、成为政府公屋的房子还有公开上市的房子,无论是哪一种KiwiBuild都会保证其“可负担性”。
(还真是老王卖瓜……)
Unitec的董事长Lee Mathias则表示,Unitec在这座校园里已经“享受”了30多年,如今能够打开门为更多人创造生活空间,让这里成为他们的家园,将是一件非常棒的事情。
不过也不是所有人如此“喜闻乐见”,国家党的住房事务发言人Judith Collins就“泼冷水”表示,Unitec的这个投资计划是我们国家党政府之前签署的好吗?我们就是想在巩固他们校园的同时发展一下剩余的住房用地,你Twyford部长如果想要在奥克兰住房问题上青史留名的话,能不能整点新东西?
“Unitec投资项目早就被纳入奥克兰住房发展计划中了,现在Twyford先生不过是在用纳税人的钱来补贴一些政府份内的事。”
(语气中似乎透露着深深的白眼……)
版权声明
1. 未经《新西兰天维网》书面许可,对于《新西兰天维网》拥有版权、编译和/或其他知识产权的任何内容,任何人不得复制、转载、摘编或在非《新西兰天维网》所属的服务器上做镜像或以其他任何方式进行使用,否则将追究法律责任。
2. 在《新西兰天维网》上转载的新闻,版权归新闻原信源所有,新闻内容并不代表本网立场。
-
- 奥克兰4月女婴竟被虐打至全身多处骨折 两人被起诉
- 时间:2018-03-28 15:36:55
- 相关新闻
-
- 又多一笔支出:AKL杂草世界第二多 拟征环境税
- 时间:2018-03-27 15:59:34
- 相关新闻
-
- 奥克兰脑瘫男童即将赴美手术 最大心愿:我要走路!
- 时间:2018-03-27 15:58:32
- 相关新闻
-
- “新中两国合作破获冰毒大案”续:主犯获刑14年
- 时间:2018-03-27 08:42:42
- 相关新闻
-
- 一起来逛吃!AKL昔日停车场变身创意美食广场!
- 时间:2018-03-27 08:41:21
- 相关新闻
-
- 10年地税将涨38%?市长:其实奥克兰人是受益者
- 时间:2018-03-27 08:35:40
- 相关新闻
-
- KiwiBuild首个建房项目公布 外界质疑政府“变戏法”
- 时间:2018-03-27 08:34:46
- 相关新闻
-
- AKL公车司机多次野蛮拒载 孕妈妈投诉种族歧视
- 时间:2018-03-26 20:22:28
- 相关新闻
-
- Ed Sheeran NZ演唱会嗨翻天!忙里偷闲到总理家中喝茶吃
- 时间:2018-03-26 16:13:11
- 相关新闻
-
- 奥克兰女孩减一半体重:从吃早饭开始甩去80公斤
- 时间:2018-03-26 16:12:05
- 相关新闻
- "天维伙伴"频道,构筑新西兰华人的精神角落
- 诚邀各界名人、行业翘楚、精英达人开设专栏,为本地华人提供丰富、多样、优质、新鲜、有趣的原创精品内容,打造新西兰华人社区最大的信息及活动分享平台。
- 新西兰警方亚裔联络官Jessica专栏
- 想了解新西兰本地安全常识?想求助新西兰警方却因语言障碍而不知所措?请访问新西兰警方亚裔联络官Jessica专栏,通过此专栏,我希望与您合作,保持您、您的环境和您的财产安全。
- 纽惠康 - 源于新西兰的健康体验
- 纽惠康是天维网旗下唯一的购物网站,我们的宗旨是利用我们的品牌优势,以最优惠的价格为您提供新西兰最优质的健康产品。请访问//wellcome.co.nz











